Knihovna Olomouc Trnkova
Konverze bývalé kotelny
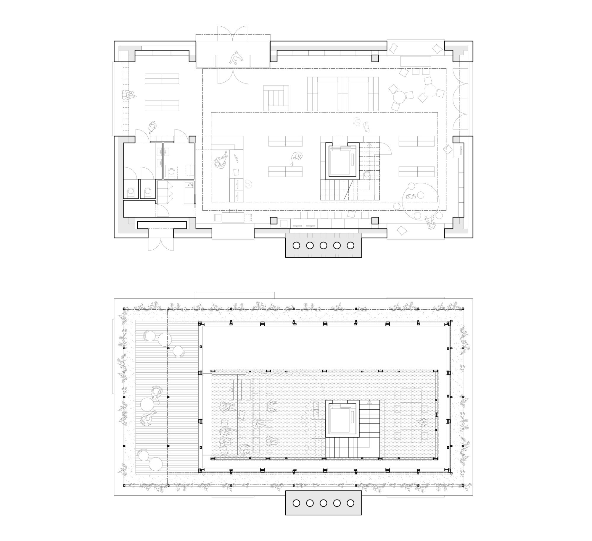
Nechtěné dědictví doby centrálního vytápění tuhými palivy. Konverze kotelny v knihovnu vnímáme jako gesto. Myšlenku “vdechnutí nového života” rozvíjíme – kyslík, který dům v minulosti bral, bude nyní dům vracet.
Do budovy očištěné na svou konstrukční podstatu je vložen objem s víceúčelovou besední částí a studovnou, který svým umístěním vytváří jádro komunitní knihovny. Tato “krabička” je součástí ocelové konstrukce zastřešení, která umožňuje bazilikální osvětlení po celém obvodu budovy. Světlo je rozptylováno živou fasádou z popínavých rostlin. Člověk nacházející se uvnitř je obklopen zelení.
Relikt komína je obalen zrcadlem. Komín mizí, už není potřeba.
Autor: Tomáš Minarovič, David Zatloukal
Status: Soutěž ČKA 2020
Zodpovědný projektant: Petr Nosál
Klient: Město Olomouc
Místo: Olomouc, ulice Trnkova

